تکنیک حل مشکل فونت های کاتب در Revit 2020
تکنیک حل مشکل فونت های کاتب در Revit 2020
همانطوری که می دانید نرم افزار Revit فونت های فارسی کاتب را پشتیبانی نمی کند و وقتی فایل اتوکدی که در آن از این فونت ها برای متن ها استفاده شده است را به صورت نامعتبر و غیر قابل خواندن نمایش می دهد. این مشکل در نسخه Revit 2020 حل شده است و با یک تکنیک ساده می توانید از این پس با فایل های اتوکدی که حاوی فونت های کاتب می باشد با خیال راحت استفاده کنید.
پشتیبانی از وارد کردن فایل PDF (PDF Import Support)
نرم افزار Revit 2020 در حال حاضر قادر به وارد کردن فایل های PDF می باشد. این قابلیت رویت مانند وارد کردن Image می باشد. تا آنجایی که هر دوی آنها از یک پنجره ای با نام Manage Image برای مدیریت فایل های استفاده می کنند. فایل های PDF را می توانید مستقیم از روی کامیپوتر خود و یا BIM 360 وارد رویت کنید.
در طول فرآیند وارد کردن فایل PDF در رویت، پنجره ای با نام Import PDF باز می شود که به کاربران این امکان را می دهد تا صفحه مورد نظر از یک فایل PDF و یا مقدار وضوح و کیفیت را تنظیم کنند.
در تصویر زیر می توانید تفاوت بین ۷۲ DPI و ۶۰۰ DPI را مشاهده کنید.
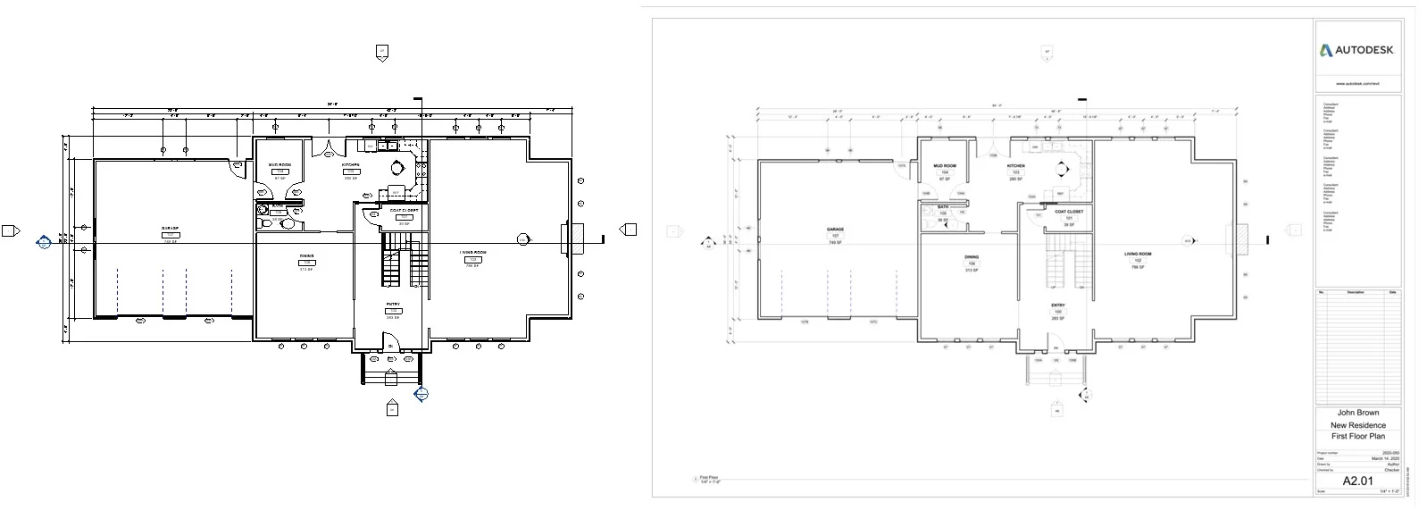
در تصویر زیر نیز می توانید یک نمونه فایل اصلی رویت را در کنار فایل PDF مشاهده کنید.
هنگامی که شما فایل PDF وارد شده را انتخاب کنید، می توانید مقدار مقیاس افقی و عمودی آن را از طریق پنجره Properties تغییر دهید. یکی از ویژگی های مهم برای این پشتیبانی جدید فایل های PDF، گزینه ای با نام Enable Snaps می باشد. با فعال کردن این گزینه، نرم افزار Revit به کاربران این اجازه را می دهد تا مانند ترسیمات خط، بر روی فایل PDF کار کنند.
در تصویر زیر می توانید دو نمونه از قابلیت Enable Snaps را مشاهده کنید که ابزارهای Line و Pick Line بر روی فایل PDF به صورت مستقیم قابل استفاده می باشد.
برای اطلاعات بیشتر و کاملتر، می توانید فیلم زیر را مشاهده کنید.






دیدگاهتان را بنویسید
برای نوشتن دیدگاه باید وارد بشوید.