طراحی HVAC چیست و چگونه در خدمات MEP سودمند است؟
HVAC Design and Drafting (طراحی و پیش نویس HVAC) روشی برای قرار دادن سیستم های گرمایش و تهویه در برنامه های طراحی ساخت است. دانش زیادی برای انجام صحیح این کار لازم است . بنابراین شرکت طراحی برای انجام این کار به یک طراح معماری بسیار متخصص نیاز دارد . واضح است که از برون سپاری این کار نیز می توان استفاده کرد. برای نمونه تیم iran-bim این آمادگی را دارد که برای انجام این خدمات در کنار شما باشد.
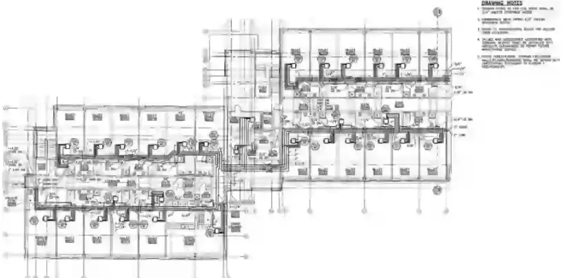
نقشه های طراحی ساخت در گذشته، با کاغذ و مداد انجام می شد. کاری که سرویس پیش نویس قادر به انجام آن است تبدیل این طرح ها به ترسیم CAD است. ایران-بیم که در تهران تاسیس شده است از بهترین شرکت هایی است که این خدمات تبدیل را ارائه می دهد. دلیل اصلی اینکه شرکت ها مایل به تبدیل نقشه های قدیمی خود هستند معمولاً ، این است که قصد دارند در ساختار تغییراتی ایجاد کنند.
مهلت مقرر پایان ، جنبه اساسی هر پروژه ای است . کسانی که کار HVAC را در ایران-بیم انجام می دهند ، در این زمینه دارای تخصص هستند. ما اساساً از نظر فنی متخصص ترین طراحان معماری را در صنعت داریم. هنگامی که پروژه ای را انجام می دهیم ، اطمینان حاصل می کنیم که افراد مناسبی را برای انجام به موقع کار به آن اختصاص داده ایم. نیروی کار در ایران-بیم می تواند بهترین کیفیت محصول را با قیمت پایین تر از هر شرکت دیگری ارائه دهد. هزینه های گرمایش و سرمایش می تواند هزینه قابل توجهی برای یک شرکت باشد و دستیابی به کارآمدترین طرح های طراحی باعث صرفه جویی در درازمدت می شود.
خدمات تهیه پیش نویس HVAC یک هنر است . در درجه اول ، افراد متخصص هستند که می توانند آن را به روش صحیح انجام دهند. روند طراحی سیستم تهویه ، چیزی است که افراد را قادر می سازد تا در هر محیطی که هستند ، در یک محیط امن کار کنند. سیستم خدمات پیش نویس HVAC جریان هوا ، دما و رطوبت را کنترل می کند. اینها قطعاً همه عوامل دستیابی به کیفیت هوای سالم روزانه برای همه افراد در یک ساختار بزرگ است. ما در ایران-بیم دارای تجربه عملی و دانش لازم برای اتمام به موقع و اقتصادی برنامه های طراحی هستیم.
 
								
 
															 
                
دیدگاهتان را بنویسید
برای نوشتن دیدگاه باید وارد بشوید.