چگونه می توان یک پروژه جدید را در Revit شروع کرد
Revit یک نرم افزار طراحی پارامتریک و چند رشته ای است . Revit یک مدل ساز واقعی نیست ، بلکه یک جمع کننده اجزای ساخت است که توسط یک سری قوانین خاص اداره می شود. برای جلوگیری از مشکلات موجود در پروژه ، رویت باید با دقت تنظیم شود. از آنجا که هر پروژه ویژگی ها و الزامات مختلفی دارد ، هنگام شروع یک پروژه جدید هیچ رویه ی استانداردی وجود ندارد. با این حال ، آشنایی با شرایط مختلف و مراحل لازم آنها بسیار کمک خواهد کرد.
چگونه می توان یک پروژه جدید را در Revit شروع کرد
تنظیمات اولیه
اگر BEP به عنوان راهنما در دسترس نیست ، مهم است که قبل از مدل سازی ، بهترین تنظیمات را برای پروژه Revit مشخص کنید ، یعنی اینکه آیا این یک فایل واحد است یا چندین فایل به هم پیوسته است. Revit یک پایگاه داده است که می تواند حاوی اطلاعات زیادی باشد . در این صورت حجم فایل به میزان قابل توجهی افزایش می یابد. برای جلوگیری از تاثیر منفی بر عملکرد نرم افزار ، در صورت امکان ، مدل ها باید با توجه به شرایط زیر از هم تفکیک شوند.
- طراحی یک رشته ای: تنظیم خاصی وجود ندارد ، یک فایل Revit کافی است.
- طراحی چند رشته ای : تصمیم بگیرید که آیا همه رشته ها را با استفاده از یک فایل مدلسازی می کنید یا آنها را در فایل های مختلف جدا می کنید. از مدل سازی تک رشته ای فقط باید برای پروژه های بسیار کوچک استفاده شود.
- طراحی چندین فرایند ساخت در یک قسمت : هر فرایند ساخت ، پکیج فایل های خاص خود را دارد (برای هر رشته یکی) و همه فایل ها در داخل یک فایل Revit خالی ذخیره می شوند .
تمپلیت (Template)
گام مربوط به تنظیم تمپلیت خوب ، اساسی و ظریف است. اگر BEP در دسترس باشد ، تشخیص خانواده های مورد نیاز(اجزای ساخت مانند درها ، پنجره ها و غیره) برای استفاده در رویت راحت تر است.
بدون BEP ، مسیر طراحی باید به طور کامل مورد مطالعه قرار گیرد تا ملزومات پروژه بهتر پیش بینی شود.
در صورتی که پروژه فعلی مشابه پروژه قبلی باشد ، اولین قدم استخراج الگوی پروژه قدیمی است. در حالت ایده آل ، یک تمپلیت استاندارد برای انواع معمولی ساخت وجود دارد. این تمپلیت ها با توجه به تحول خانواده ها و سبک طراحی ، با گذشت زمان حفظ می شوند.
نکته ی مهم این است که شما نباید یک پروژه قبلی Revit را تحلیه کرده و تغییر نام دهید تا یک پروژه جدید را با آن شروع کنید.
Revit یک پایگاه داده است که همه موارد (حتی خطاهای داخلی) را ردیابی می کند ، بنابراین نتیجه نهایی فایلی بسیار سنگین تر از حالت عادی است.
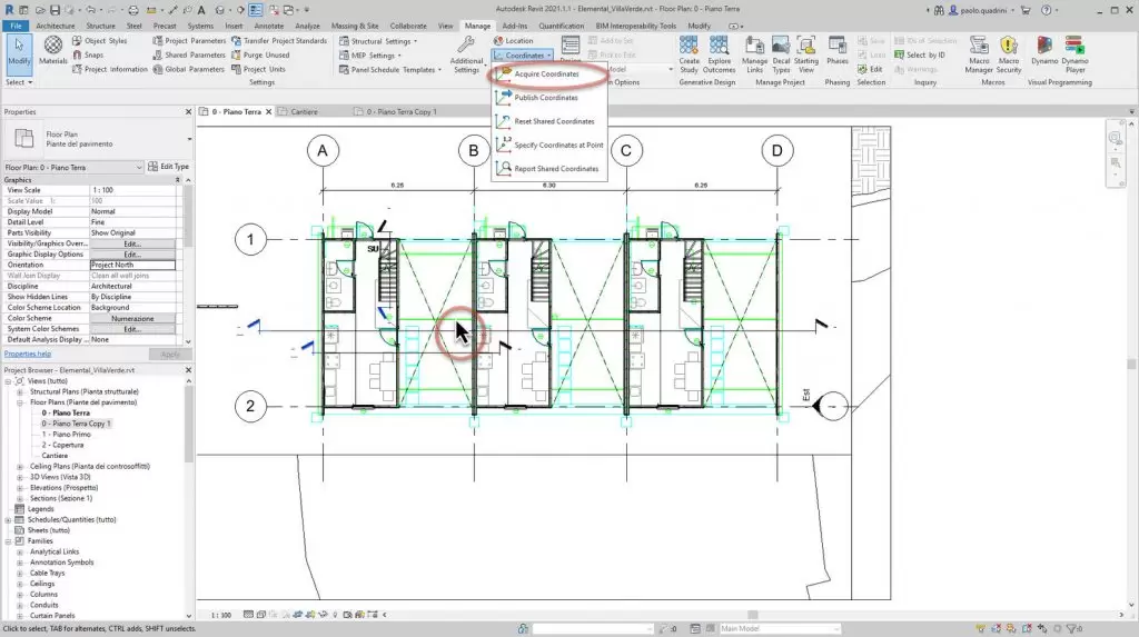
مختصات مشترک
به طور کلی ، مختصات مشترک یا موقعیت جغرافیایی برای یک رویکرد خوب طراحی لازم نیست.
با این حال ، کار هماهنگ بین رشته های متعدد ، همیشه به موقعیت مشترک و تنظیم مختصات و همچنین کارهایی نیاز دارد که به قابلیت همکاری بین نرم افزار نیاز دارند.
هنگامی که لینکب در پروژه بارگذاری شد و نقطه پایه آن در مبدا Revit قرار گرفت (به عنوان مثال از طریق ترجمه roto) ، مختصات استحراج شده از خود پیوند خود کافی است.
با داشتن یک فایل URS ، به سادگی آن را به فایل پروژه پیوند دهید تا مختصات آن را بدست آورید.
ابزارهای جابجایی دستی Project Base Point و Survey Point ، و همچنین چرخش Real North ، برای رفع ضعف مختصات استفاده می شود و نه برای اصلاح کل پروژه .
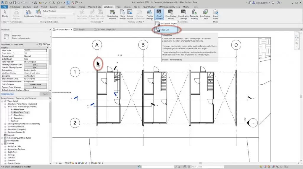
شبکه ها و سطوح (GRID و LEVEL)
اگر فایل URS داشته باشیم ، می توانیم با استفاده از ابزار Copy / Monitor ، ایجاد شبکه ها و سطوح را دور بزنیم . این کار به ما امکان می دهد ، شبکه ها و سطوح از پیش تعیین شده را به صورت خودکار در پرونده URS کپی کرده و تغییر ( های ) نهایی آنها را کنترل کنیم.
حتی بدون این نوع پشتیبانی ، ما همچنان می توانیم شبکه ها و سطوح خود را به صورت دستی ایجاد کنیم.
سخن پایانی
پس از انجام این مراحل و اقدامات احتیاطی ، فایل Revit ما برای اطمینان از سازگاری اطلاعات چندرشته ای آماده خواهد شد. پیکربندی صحیح پارامترهای پرونده قبل از مدل سازی ، گام اساسی در به دست آوردن نتایج دقیق است.






دیدگاهتان را بنویسید
برای نوشتن دیدگاه باید وارد بشوید.