آموزش Advance Steel 2020
آموزش Advance Steel 2020
نرم افزار Autodesk Advance Steel 2020 برای شاپ سازه های فلزی می باشد که قدرت و انعطاف پذیری بسیار بالایی را برای انواع پروژه های ساختمانی و صنعتی و … دارد. در این پُست آخرین ویژگی هایی که به نسخه ادونس استیل ۲۰۲۰ اضافه شده است را توضیح می دهیم.
شما می توانید از فروشگاه سایت آموزش حرفه ای نرم افزار Advance Steel را تهیه کنید.
۱- Propagation of steel connections (توزیع اتصالات ادونس استیل)
در نرم افزار ادونس استیل ۲۰۲۰، اکنون می توانید با استفاده از ویژگی Propagate Join اتصالی که در پروژه موجود است را به صورت خودکار در کل پروژه توزیع کنید. برای اینکار، کافی می باشد که joint box (جعبه خاکستری اطراف اتصال) را انتخاب کنید، سپس کلیک راست کرده و از منوی باز شده گزینه ای با نام Propagate Joint در دسترس قرار می گیرد، بر روی آن کلیک کنید. با انتخاب این گزینه، اتصال انتخاب شده در تمام موقعیت های مشابه با اتصال انتخاب شده، به صورت خودکار اضافه می شود. از آنجایی که تمام اتصال های اضافه شده بر اساس اتصال انتخاب شده، به عنوان بخشی از یک گروه می باشند، با تغییر و ویرایش این اتصال، تمام اتصالات اضافه شده به صورت خودکار بروز رسانی می شوند. این یکی از برترین ویژگی هایی می باشد که در ادونس استیل ۲۰۲۰ شاهد آن هستیم.
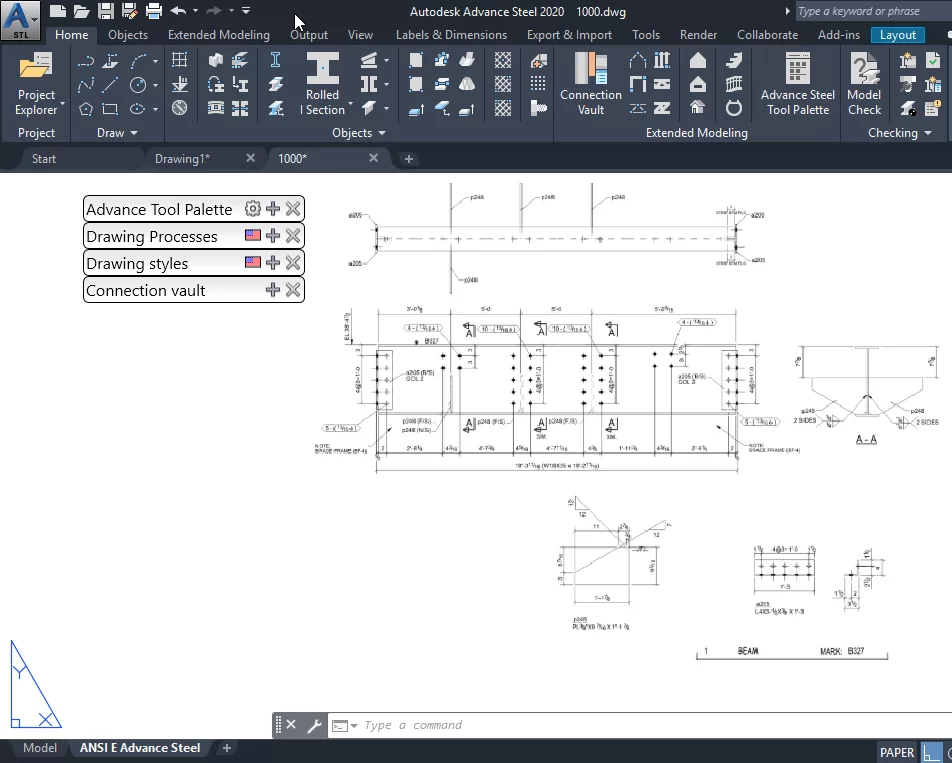
۲- Align labels on drawings (همترازی لیبل بر روی شاپ ها)
هنگامی که شما یک دید شاپ یا drawing ایجاد کرده باشید، برای بهتر نمایش شکل ظاهری آنها، می توانید مجدد چیدمان کنید. با Advance Steel 2020 می توانید یک لیبل را به موقعیت متفاوت انتقال دهید و ویرایش ها را با استفاده از گزینه جدید Arrange labels بر روی آنها اعمال کنید. همچنین با کمک ویژگی Align Labels to Reference امکان همتراز کردن لیبل های انتخاب شده را با یک موضوع یا خطوط اتوکدی را دارید. این ویژگی ها باعث بهینه شده حالت نمایش و کیفیت کار در نقشه های شاپ می شود. گزینه Align Labels to Reference را می توانید از منوی کلیک راست انتخاب کنید.
۳- More control on hole labels on drawings (کنترل بیشتر بر روی لیبل های سوراخ در شاپ)
هنگامی که شما لیل یک سوراخ را جابجا می کنید، فلش موجود بر روی خط راهنمای لیبل، به صورت خودکار بر روی نزدیک ترین سوراخ از آن اتصال قرار می گیرد. این ویژگی باعث می شود تا طول خط راهنما کوتاه تر شود و نقشه خوانی را بهتر و قابل فهم تر می کند. می توانید این ویژگی جدید اضافه شده از زبانه Leader line در پنجره properties توسط گزینه Automatic leader line position for labels on hole patterns را فعال یا غیر فعال کنید. علاوه بر این فلش موجود بر روی خط راهنما، در خارج از سوراخ برای وضوح بیشتر سوراخ قرار می گیرد.
۴- Cut view symbols alignment on drawings (همتراز شدن Cut view symbols با ترسیمات)
در Advance Steel 2020، برای اینکه نقشه های شاپ بهتر و تمیز تری داشته باشید، می توانید cut view symbols را با نقشه شاپ همتراز کنید. با ابزار Align Cut View Symbols to a reference symbol اکنون تمام cut symbolهای موجود در نقشه شاپ را توسط یک سیمبل مرجع همتراز می کند. این یک روش بسیار ساده برای اینکه شما اطمینان حاصل کنید در طول جابجایی ترسیمات، cut symbol در موقعیت درستی قرار دارد.
۵- Cut view symbols customization (سفارشی سازی Cut view symbols)
Advance Steel 2020 امکانات بیشتری برای سفارشی کردن Cut view symbols در اختیار کاربران قرار داده است. قالب cut symbol (تعریف شده در یک فایل DWG) چندین ویژگی جدید مانند علامت های جدید، پشتیبانی از متن های وارد شده توسط کاربر، قالب متن توسط Text Style و کنترل رنگ متن در فایل را برای کمک به سفارشی کردن نماد برش قرار داده است. علاوه بر این، در پنجره Management Tools پیش فرض های جدیدی برای این منظور تعریف شده است تا به شما کمک کند که کدام نماد برش از یک فایل DWG را می خواهید برای Upper و Lower استفاده کنید.

۶- Cut view title customization (سفارشی سازی عنوان Cut view)
شما اکنون می توانید نام دید برش را با دو علامت جدید سفارشی کنید. علامت Scale را هنگامی که شماره دید (A) را در شماره دید برش، در دید جاری نمایش می دهد از یک حرف استفاده می کند. شما می توانید علامت نام دید را با استفاده از پنجره Drawing Style Manager و یا در محیط شاپ بر روی علامت متن برش دوبار کلیک کنید و در پنجره Properties باز شده تنظیم و مدیریت کنید.

۷- High DPI display support (پشتیبانی از مانیتور با رزولوشن بالا)
نرم افزار Advance Steel 2020 اکنون از مانیتور هایی با وضوح بالا پشتیبانی می کند. رابط کاربری بهبود پیدا کرده است، از جمله آیکن های ریبون در سایز های با وضوح بالا به درستی نمایش داده می شوند و به صورت خودکار بر اساس ابعاد وضوح صفحه نمایشگر در محدوده خود تغییر سایز پیدا می کنند.

۸- Dialog boxes display enhancement (بهبود پنجره تنظیمات)
در Advance Steel 2020 هنگامی که پنجره تنظیمات هر عنصر یا اتصالی را باز می کنید، عرض زبانه های آن به صورت خودکار متناسب به طول متن تنظیم می شود تا قابلیت خوانایی بهتری داشته باشند.
۹- Local content for US English (محتویات محلی برای US English)
با نصب نرم افزار Advance Steel 2020 در ایالات متحده آمریکا، کاربران دسترسی به یک نسخه محلی تر برای بازار کار ایالات متحده خواهند داشت. این شامل فایل های مانند نماد برش برای استفاده در کل ترسیمات و یا مجموعه ای از تمپلیت های شاپ خودکار برای سرعت و کیفیت کار بر اساس استاندارد آمریکا می باشد.

نکته : برای تهیه آموزش نرم افزار ادونس استیل تولید شده توسط تیم IRAN-BIM به فروشگاه سایت مراجعه فرمائید.
دیدگاهتان را بنویسید
برای نوشتن دیدگاه باید وارد بشوید.