مطالعه موردی BIM : حفاظت حریق در ساختمان Coca-Cola HBC
در این مطلب مزایای عملی استفاده از BIM را برای طراحی در سیستم حفاظت از آتش بررسی می کنیم. این پروژه شامل افزایش ظرفیت ذخیره سازی یک کارخانه بطری سازی Coca-Cola HBC S/E Europe در تیمیس ، رومانی است.
پروژه مربوط به نصب آبپاش در فضای ذخیره سازی جدید Coca-Cola HBC بود که دارای فضای ذخیره سازی ۳۰٫۰۰۰ فوت مربع بعلاوه فضای بارگیری ۱۳٫۰۰۰ فوت ، با استفاده از سیستم آبپاش سقفی است. این پروژه در ژانویه ۲۰۱۹ به پایان رسید.
شبکه اطفای حریق با FineFIRE ، طراحی و محاسبه شده است. FineFIRE عملکردی شبیه اتوکد را با رویکرد آشنای BIM ترکیب ، که به کاربر کمک می کند شبکه لوله کشی را سریع و هوشمند ترسیم کند.
چرا BIM و FineFIRE؟
مدل سازی اطلاعات ساخت (BIM) یک فرایند هوشمند مبتنی بر مدل سه بعدی است که از اطلاعات معنایی برای شبیه سازی رفتار مدل به منظور دستیابی به گزینه های بهینه استفاده می شود.
دلایل مهمی وجود داشت که طراحان FineFIRE را انتخاب کردند:
-
- با استفاده از فرایند BIM مدرن و ظاهری شبیه اتوکد به کاربر کمک می کند تا شبکه های لوله کشی را سریعتر و راحت تر طراحی کند.
-
- سازگاری کامل را با Revit® ، Archicad® ، Vectorworks® ، SketchUp Pro® از طریق قالب IFC2x3 تضمین می کند.
-
- محاسبات هیدرولیکی قابل اعتماد و کاملاً مستند را مطابق با همه استانداردهای شناخته شده مانند NFPA 13 (استاندارد آمریکایی) ، EN 12845 (استاندارد اروپا) ، BS 9251 (استاندارد انگلیس) ، AS 2118 (استاندارد استرالیا) ، ASIB11 (استاندارد آفریقای جنوبی) تضمین می کند.
-
- امکان طراحی هر نوع شبکه لوله کشی (سیستم های درختی ، مشبک ، حلقه ای یا هر ترکیبی) را می دهد.
-
- مطابق با خطرات ساختمان (LH ، OH ، HH) و نوع آبپاش (سقف ، آبپاش کناری یا هر دو) ، آبپاش ها را به طور خودکار در هر فضا قرار می دهد.
-
- مطلوب ترین و نامطلوب ترین گروه های آب پاش (از طریق شبیه سازی دقیق هیدرولیکی) را مشخص کرده و با در نظر گرفتن منحنی ها/نمودارهای عملکرد ، نقطه NPSH و سایر عوامل ، پمپ مناسب را انتخاب می کند.
-
- مقدار دقیق را که باید در پروژه مورد استفاده قرار گیرد (یعنی لوله ها ، تعداد آبپاش ها ، اتصالات و غیره) محاسبه می کند.
-
- یک گزارش نهایی کاملاً مستند و مجموعه ای کامل از نقشه ها به صورت دو بعدی و سه بعدی مطابق استانداردها ارائه می دهد.
-
- همه موارد فوق در یک محیط BIM یکپارچه که در آن کاربر می تواند به طور مستقیم بر روی مدل سه بعدی کار و تعامل کند ، هم افزایی دارند.

طراحی شبکه
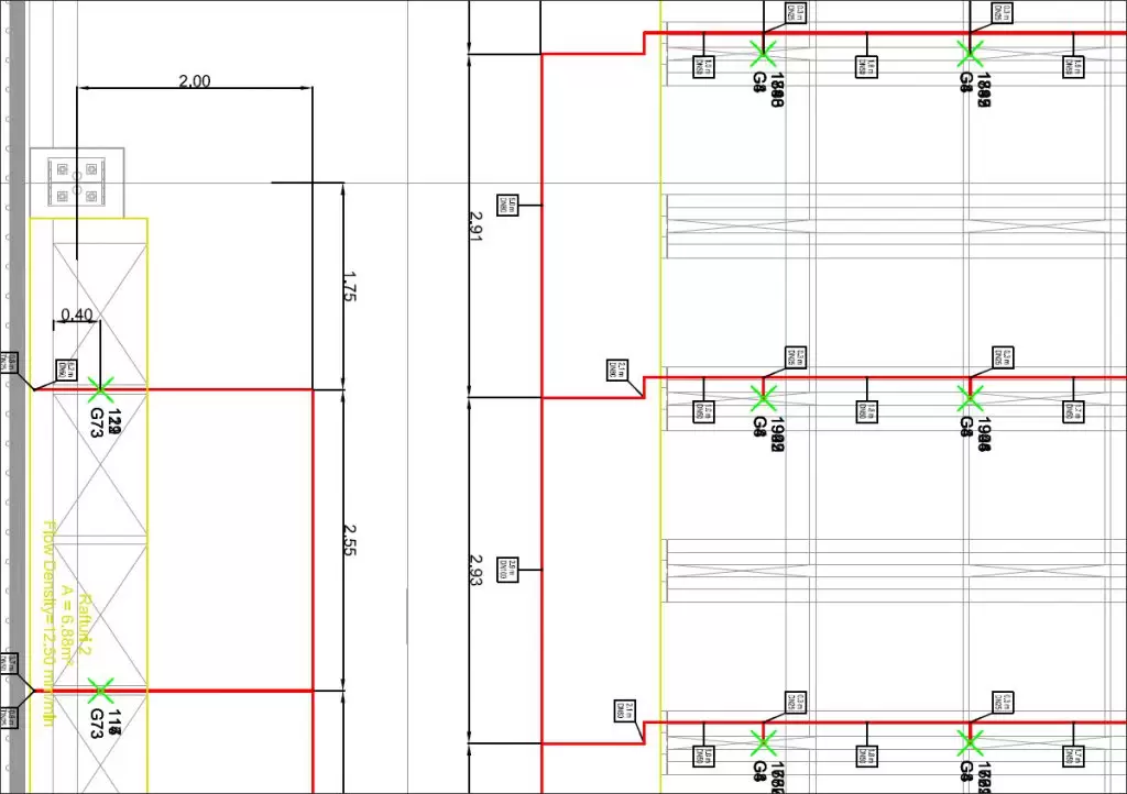
FineFIRE با پیشنهاد تعداد مطلوب آبپاش ها در شبکه هر منطقه ، زمان قابل توجهی را ذخیره می کند. این برنامه آبپاش ها را به درستی قرار می دهد و فاصله مناسب را بین خود آبپاش ها و مرزهای دیوار حفظ می کند. (شکل ۲).

طراحی لوله کشی از طریق دستورات مسیریابی FineFIRE ساده می شود (شکل ۳).

در این مطالعه موردی خاص ، آبپاش ها در ۸۸ گروه، گروه بندی شدند که هر یک از آنها برای پوشش یک منطقه خاص اختصاص داده شده بود. آنچه در این مرحله مهم است فرآیند تشخیص شبکه توسط FineFIRE است که با نشان دادن اشتباهات احتمالی و نحوه اصلاح آنها ، اعتبار شبکه را بررسی می کند.

محاسبات
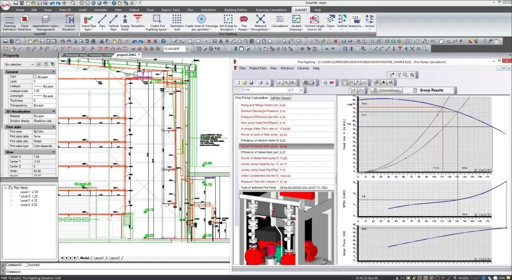
نتایج محاسبه ، همانطور که توسط موتور محاسبه FineFIRE ارائه شده است ، ابعاد دقیق شبکه پروژه را مشخص می کند که در آن اندازه هر لوله مطابق با استانداردها است. شماره ها و بخش های گره شماره گذاری شده و به طور خودکار نامگذاری می شوند تا دید و کنترل آسان در برگه محاسبه برای هر بخش لوله و آبپاش فراهم شود (شکل ۵).

پارامترهایی مانند حداکثر مساحت عملکرد در هر آبپاش (m2) ، چگالی طراحی (mm/min) ، تلفات اصطکاک (bar) ، جریان (لیتر در دقیقه) و موارد دیگر مطابق با استاندارد NFPA 13 همه در برگه محاسبه نشان داده شده است. کاربر به متغیرهای مستقل دسترسی دارد و کل برگه محاسبه پس از هر تغییر به طور خودکار به روز می شود. مهمتر از همه ، طراح می تواند همزمان بر نقشه ها و محاسبات نظارت کامل داشته باشد (شکل ۶).

وقتی صحبت از انتخاب سایر تجهیزات می شود ، مطلوب ترین و نامطلوب ترین گروه های آب پاش به طور خودکار تشخیص داده می شود تا از انتخاب مجموعه پمپ آتش نشانی مناسب و مخزن آب پشتیبانی کند (شکل ۷). به این ترتیب ، پمپ قادر است جریان و فشار لازم را برای مطلوب ترین و نامطلوب ترین مناطق ، مطابق استانداردهای NFPA (و همچنین EN) ، ارائه دهد.

گزارشات محاسبه شامل کلیه نتایج مرحله به مرحله و نهایی مطابق با استاندارد انتخاب شده است. خروجی شامل مجموعه ای از نقشه های دو بعدی و سه بعدی است که پس از محاسبه به طور خودکار تولید و به روز می شوند. نمودار نمادین طرح پمپ ها نیز موجود است (شکل ۸)

سخن آخر
FineFIRE یک رویکرد BIM جامع برای طراحی برنامه نصب آبپاش (درختی ، حلقه ای ، مشبک یا هر ترکیبی) از طریق یک محیط شبیه سازی پیچیده ارائه می دهد. FineFIRE با وجود پارامترهای بسیار زیاد ، کاربر پسند است ، توانایی مدیریت اطلاعات BIM را در هر مرحله از فرآیند طراحی در اختیار طراح قرار می دهد و امکان همکاری بین کاربران مختلف را با توجه به سایر نرم افزارهای CAD و BIM فراهم می کند.
دیدگاهتان را بنویسید
برای نوشتن دیدگاه باید وارد بشوید.